Elysium
- El yate boutique ideal para escaparse al paraíso
El yate boutique Elysium sorprende desde el primer guiño de ojos. Viajar en este yate de crucero de Elixir Cruises nos lleva a descubrir el mundo rodeado de relax, bienestar, conocimiento y diversión. Un nuevo concepto que cada vez está más de moda para los cruceristas que buscan un entorno de exclusividad. Abordo cuenta con 25 lujosos camarotes divididos en dos cubiertas: camarotes con ojos de buey al más típico estilo marinero, y camarotes con ventanas más clásicos. Su interior desborda modernidad por todos los lados gracias a la mezcla de diseño vanguardista pero con cierto toque nostálgico gracias a sus maderas nobles, espacios abiertos y un cierto toque de clasicismo. A pesar de su pequeño tamaño, alberga un jacuzzi en la cubierta solárium, una tienda para adquirir productos de merchandising, una delicada y sensacional zona de spa y gimnasio, y un restaurante “farm-to-table” con cocina muy refinada de alta calidad. Sin duda, el Elysium es un ejemplo de yate refinado con servicio personalizado ideal para unas vacaciones de ensueño.
- 8,9NotableLo mejor valorado:Gastronomía9,2
- Lo más destacado de Elysium: Servicio personalizado Jacuzzi Áreas lounge
Ficha técnica del Elysium
Características
- NavieraElixir Cruises
- Categoría4.5 estrellas
- Bandera del barcoGrecia
- Idioma oficialInglés
- Pasajeros58
- Tripulación28
Fotos del Elysium
Servicios
- Ascensores
- Bares (x2)
- Biblioteca
- Bodas a bordo
- Capilla
- Casino
- Cine
- Discoteca
- Gimnasio
- Guardería
- Internet Corner
- Jacuzzi
- Pista de jogging
- Lavandería
- Piscinas cubiertas
- Piscinas para niños
- Piscinas exteriores
- Pista multideportes
- Animación para menores
- Restaurantes (x2)
- Sala de videojuegos
- Salón de belleza / Peluquería
- SPA
- Salas de masajes
- Teatro
- Tiendas
- Wifi (Pago)
- Dietas especiales (Celiacos, Kosher...)
- Toboganes
- Camarotes adaptados
Camarotes del Elysium
- Exterior CCubierta(s):
Inferior
Ocupación: 1 - 2 pasajerosOjos de buey - Cama de matrimonio o separadas - Baño - Aire acondicionado - Televisión plana - Minibar - Caja de seguridad - Secador - Wi-Fi - Teléfono - Toallas de playa - Albornoz y zapatillas - Men + más Lo que incluye este camarote: - *La imagen es solo representativa: el tamaño, la distribución y el mobiliario pueden variar (dentro de la misma categoría de camarote).
- Exterior BCubierta(s):
Inferior
Ocupación: 1 - 2 pasajerosOjos de buey - Cama de matrimonio o separadas - Baño - Aire acondicionado - Televisión plana - Minibar - Caja de seguridad - Secador - Wi-Fi - Teléfono - Toallas de playa - Albornoz y zapatillas - Men + más Lo que incluye este camarote: - *La imagen es solo representativa: el tamaño, la distribución y el mobiliario pueden variar (dentro de la misma categoría de camarote).
- Exterior B+Cubierta(s):
Inferior
Ocupación: 1 - 3 pasajerosOjos de buey - Cama de matrimonio o separadas - Cama supletoria (para 3ª persona) - Baño - Aire acondicionado - Televisión plana - Minibar - Caja de seguridad - Secador - Wi-Fi - Teléfono - Toallas de + más Lo que incluye este camarote: - *La imagen es solo representativa: el tamaño, la distribución y el mobiliario pueden variar (dentro de la misma categoría de camarote).
- Exterior ACubierta(s):
Superior
Ocupación: 1 - 3 pasajerosVentanas - Cama de matrimonio o separadas - Cama supletoria (para 3ª persona) - Baño - Aire acondicionado - Televisión plana - Minibar - Caja de seguridad - Secador - Wi-Fi - Teléfono - Toallas de pla + más Lo que incluye este camarote: - *La imagen es solo representativa: el tamaño, la distribución y el mobiliario pueden variar (dentro de la misma categoría de camarote).
- Exterior A+Cubierta(s):
Superior
Ocupación: 1 - 3 pasajerosVentanas - Cama de matrimonio o separadas - Sofá cama - Baño - Aire acondicionado - Televisión plana - Minibar - Caja de seguridad - Secador - Wi-Fi - Teléfono - Toallas de playa - Albornoz y zapatill + más Lo que incluye este camarote: - *La imagen es solo representativa: el tamaño, la distribución y el mobiliario pueden variar (dentro de la misma categoría de camarote).
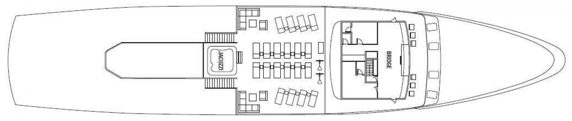
Cubiertas del Elysium
Gastronomía del Elysium
- Restaurante Indoor Se trata del restaurante principal interior ubicado en la cubierta superior. Cuenta con 7 mesas con capacidad para los 48 a 58 pasajeros. Se sirven comidas locales frescas compradas a diario. Está abierto para el desayuno y comida en modo buffet, y para la cena a la carta o buffet. ... Ver más
- Restaurante Thalassa En la popa del yate en la cubierta superior, el Elysium ofrece un restaurante buffet para comer al aire libre acompañado de una buena copita de vino. Es el lugar ideal para tomarse una comida local mirando al mar ya sea con el buffet del día o con una excelente barbacoa.... Ver más
Destacado del Elysium
- Lounge Indoor Es el lugar ideal para socializar, crear nuevas amistades, charlar sobre cada experiencia diaria, tomar un cocktail fresquito, participar en las charlas y seminarios, o incluso ver una película tranquilamente. Es el espacio donde el crucerista se siente como en casa.... Ver más
- Lounge Outdoor La cubierta solárium ofrece un rincón especial para poder disfrutar de una buena fruta fresca y un aperitivo mirando al mar. Cuenta con unos excelentes sofás para pasar un agradable momento al atardecer o por la noche con un champagne con música lounge.... Ver más
- Solárium La cubierta Sun es la preferida para los momentos de navegación o de descanso absoluto. Cuenta con jacuzzi y 20 tumbonas de lujo que invitan a pasar el tiempo mirando al mar, leer un libro o escuchar música lounge.... Ver más
- Jacuzzi El Elysium dispone de un jacuzzi con capacidad para 6-8 personas. Es uno de los lugares más deseados tras una jornada de visitas, un día de relax o mientras el barco navega hacia otra escala. Te magnetiza gracias a las vistas que ofrece hacia destinos paradisíacos.... Ver más
- Biblioteca En el salón principal se ubica la zona de biblioteca, zona de juegos y televisión. El rincón perfecto para leer una gran novela, aprender sobre las escalas que se visitan durante el crucero o ver una película.... Ver más
- Tienda En cualquier viaje siempre es casi obligatorio comprar un recuerdo. A bordo del Elysium es posible comprar un detalle en su tienda ubicada en el gran salón.... Ver más





































